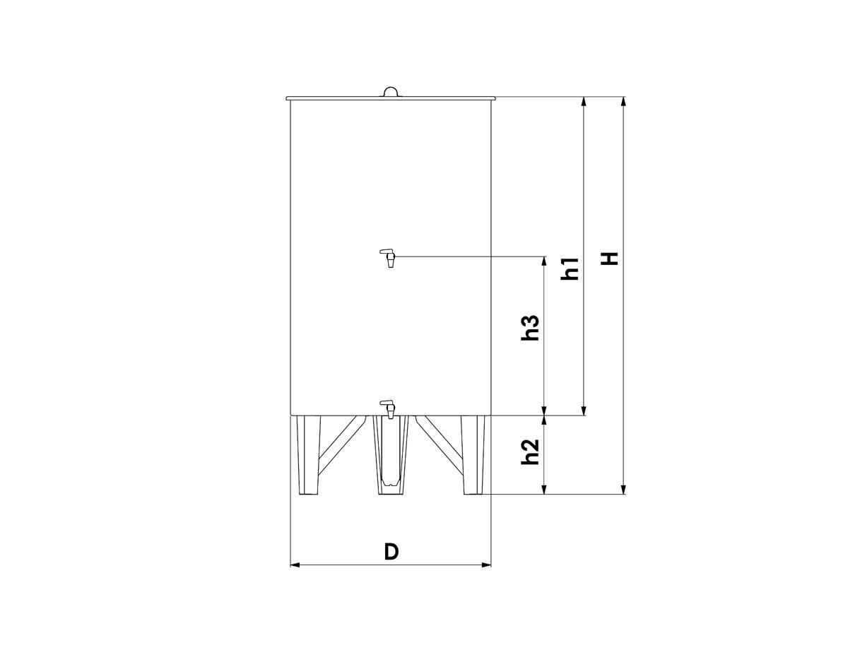
500 literes, álló hengeres rozsdamentes acél, saválló, inox bor és pálinka tartály 2 csapos felszereltséggel.
A tartály tartalmazza: csap(ok), porzáró fedél, úszófedél
Élelmiszer - minősítési bizonyítvánnyal és szlovén OÉTI engedéllyel ellátott korrózió-álló acéltartály, pl.:bor, sör, víz, pálinka, üdítők, tej, méz, ecet, olaj stb... tárolására.
Számos előnye van a hagyományos fahordókkal szemben:
- Könnyen tisztítható,
- hosszú élettartam,
- a saválló anyag nem szívja magába a különböző borok illatát,
- a tárolt folyadék súlyához képest könnyű,
- a bort nem éri a levegő, hiszen az úszófedél a paraffin olajjal légmentesen zár,
- megfelel a magas színvonalú higiéniai előírásoknak.
Minden tartály magasfényű rozsdamentes (1.4301 jelölésű) acélból készül. Tartozik hozzá egy porvédő és egy úszófedél, valamint típustól függően 1-3 csap. Rozsdamentes acélból készült bortároló tartályok kis mérettől (12 liter) - ipari méretig (6.400 liter)kaphatóak.
Használati utasítás
- Első feltöltés előtt a tartály elemeit langyos szappanos vízzel elmossuk, majd öblítjük. Száradást követően a tartály felhasználásra kész!
- A kívánt termék betöltését követően a folyadék tetejére helyezzük rá az úszófedelet.
- A fedél behelyezése után, a fedél és a tartály közötti rést körben töltsük ki élelmiszer-ipari minőségű paraffin olajjal. Így a tartály úszófedele és a paraffin filmréteg légmentesen zár, folyadékból történő kiengedést követően is. A tartály méretétől függően kb. 0,5-2 dl paraffin elegendő erre.
- Ha a bor elfogyott a záró paraffint is kiengedjük, a tartályt a fent leírt módon újra tisztítjuk.
- Ezt követően a tartály ismét felhasználásra kész (minden feltöltéskor érdemes friss, oxidáció mentes olajat felhasználni).
Tartály tisztítása:
Meleg vagy forró vízzel, karcmentes mosogatószerekkel. A képződött borkövet a forró víz azonnal leoldja.












